ID CP2077562

Casa | 9 camere | Garaj | Piscina | Teren 3.000 mp | Comision 0%

ID CP2077562

335,000 €

Casă / Vilă cu 9 camere de vânzare
Giarmata
305 mp
2000

De vanzare, direct de la proprietar, comison 0% !

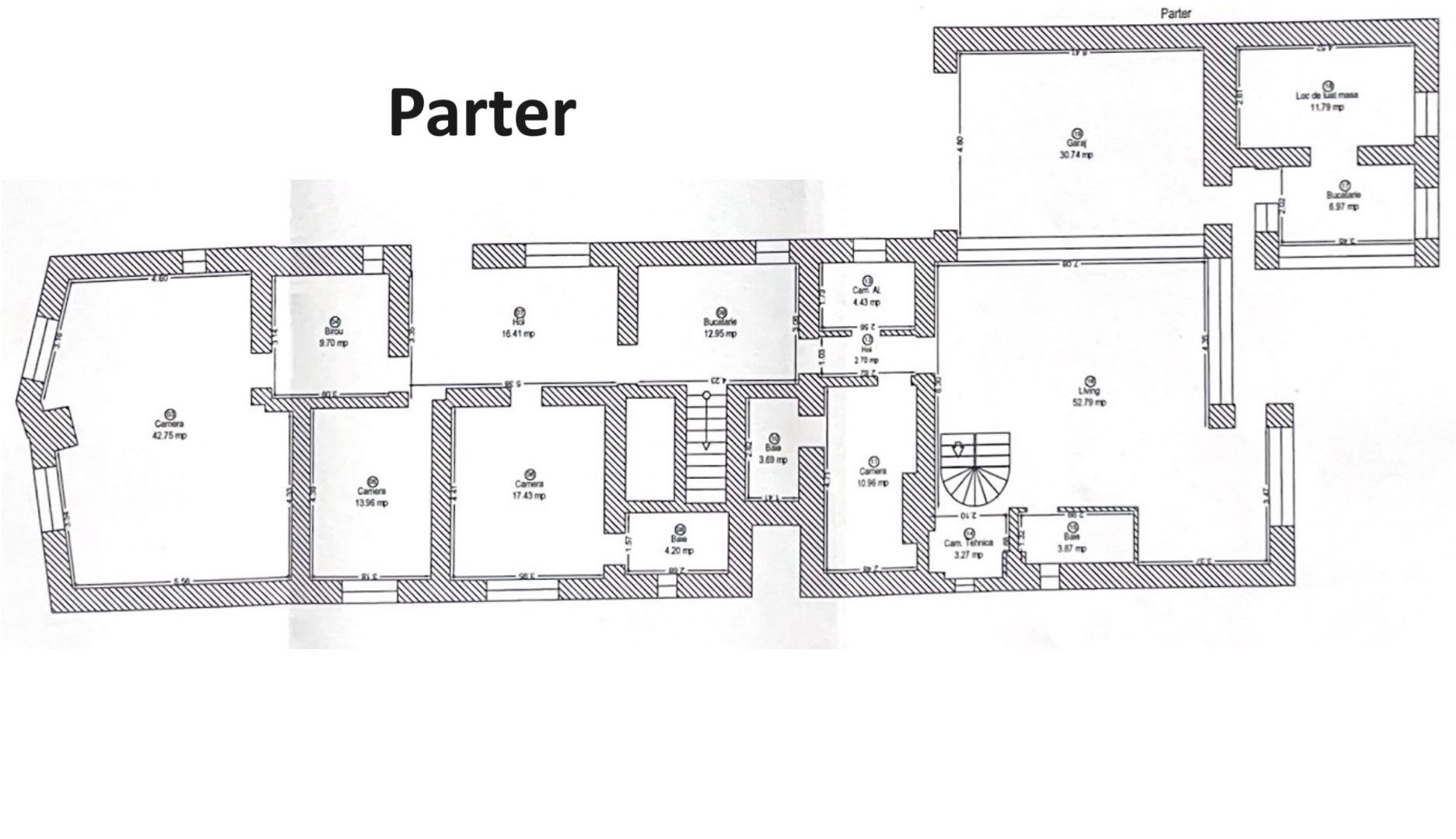
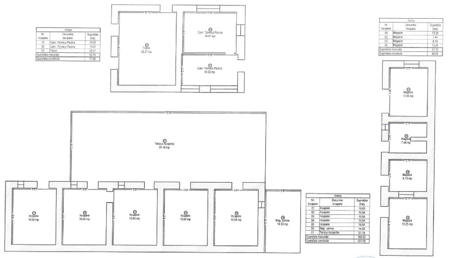
Casa formata din 1 casa pe parter cu posibilitate de mansardare + 1 casa P+E construita in anul 2000, situata in Giarmata.

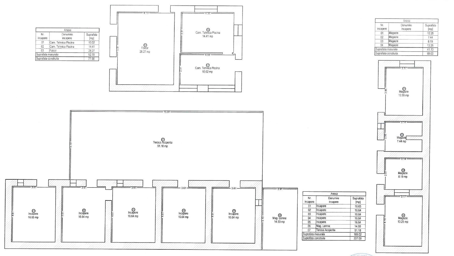
Casa dispune de 9 camere, 2 bucatari, 6 bai, 13 anexe, unele cu posibilitate de mansardare, 1 garaj, 2 pivnite, 1 piscina, 2 subsoluri, etc. este predabila atat pentru locuit cat si pentru alte activitati, Pensiune, camin batrani, etc.

Detaii relevante:

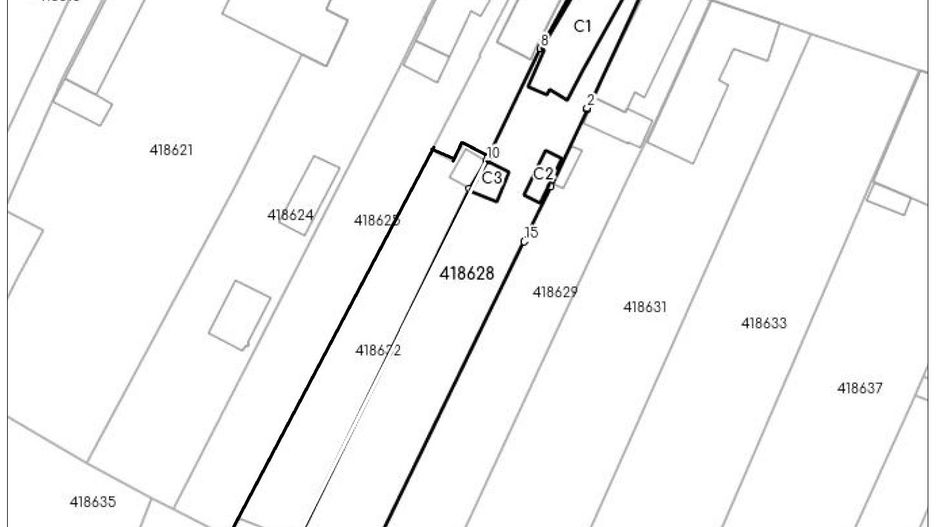
Suprafata Teren: 3000 mp

Suprafata Utila : 304 mp

Suprafata Utila totala: 360 mp

Suprafata construita desfasurata: 538

Suprafata utila Anexe: 265

Suprafata construita Anexe: 374

Utilitati: gaz, apa (exista si hidrofor, fantana), curent, fosa, canalizarea este realizata si legata dar nefunctionabila momentan.

2 Centrale pe gaz, 1 pentru casa parter si una pentru casa P+ E

Piscina 15 m / 5

Comision 0%

Citește mai mult

  • Număr camere
    9
  • Dormitoare
    6
  • Număr bucătării
    2
  • Număr băi
    6
  • Geam la baie
    Da
  • Număr terase
    2
  • Număr garaje
    1
  • Număr locuri parcare
    10
  • Disponibilitate
    Imediat
  • Tip casă
    Individual
  • Stare interior
    Bună
  • Anul finisării
    2000
  • Suprafață utilă
    305 mp
  • Suprafață construită
    360 mp
  • Suprafață construită la sol (Amprentă)
    538.0 mp
  • Suprafață teren
    3,000 mp
  • Deschidere
    15 m
  • Acoperiș
    Țiglă
  • Stadiu construcție
    Finalizată
  • An construcție
    2000
  • Construcție nouă
    Da
  • Tip construcție
    Beton
  • Număr etaje clădire
    1
  • Număr subsoluri
    1

Facilități

Acoperiș
Aer condiționat
Apă
Apometre
Aragaz
Bideu
Cabină de duș
Cadă
Calorifere
Canalizare
CATV
Centrală proprie
Contor căldură
Contor electric
Contor gaz
Curent
Curte
Dressing
Faianță
Ferestre PVC
Frigider
Garaj
Gaz
Grădină proprie
Gresie
Hotă
Iluminat stradal
Internet
Irigații
Izolație exterioară
Magazie
Mașină de spălat rufe
Mașină de spălat vase
Mijloace de transport în comun
Mobilat parțial
Parchet
Piscină exterioară
Pivniță
Scară interioară
Șemineu
Senzor de fum
Sistem de alarmă
Spălătorie
Spații agrement
Străzi asfaltate
Supraveghere video
Telefon
TV
Ușă intrare lemn
Ușă intrare PVC
Uscătorie
Uși interior lemn
Vedere panoramică
Vopsea lavabilă
WC Serviciu
Wireless
Zonă pentru barbeque
Alexandru Negrescu - ImoWest Imobiliare
Alexandru Negrescu
Senior Consultant

0757875200


Solicită chiar acum o vizionare
Telefon
Sună acum Solicită vizionare
Necesare:

Site-ul nu poate funcționa corect fără aceste cookie-uri. Vezi cookie-urile

Statistică:

Strângem statistici anonime despre voi, vizitatorii unici, pentru a vă îmbunătăți experiența dumneavoastră. Vezi cookie-urile

Marketing:

Pentru a ne promova mai eficient serviciile noastre, folosim cookies pentru a vă identifica și a vă oferi proprietăți și servicii personalizate. Vezi cookie-urile

Acest site folosește cookies, află detalii. Alege ce tipuri de cookies dorești să permitem: