ID CP2587600

Giroc-Bld. Aviatiei | 5 camere | 3 bai | Bucatarie inchisa | Asfalt

ID CP2587600

196,000 €

Casă / Vilă cu 5 camere de vânzare
Giroc
115 mp
2025

ImoWest Imobiliare vă oferă spre vânzare un duplex P+E, situat în Giroc, în apropierea Bulevardului Aviației – cum se intră în localitate, după benzinăria ESO. Zona este bine conectată, cu acces rapid către oraș, străzi asfaltate, magazine și facilități în apropiere.

📐 Suprafață utilă: 115 mp

📏 Suprafață teren: 270 mp

🧱 Regim de înălțime: P+E

🔌 Utilități: apă, gaz, curent

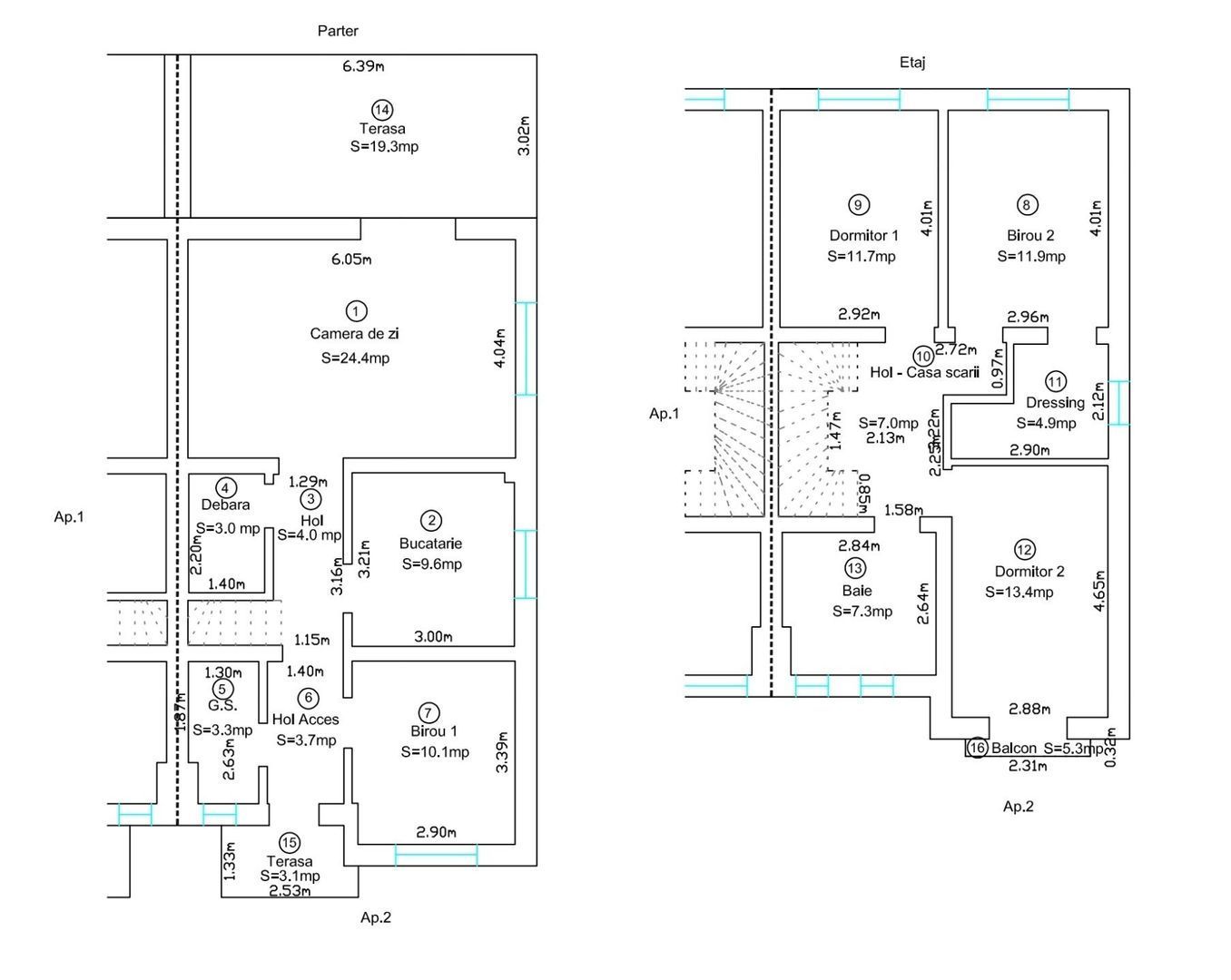
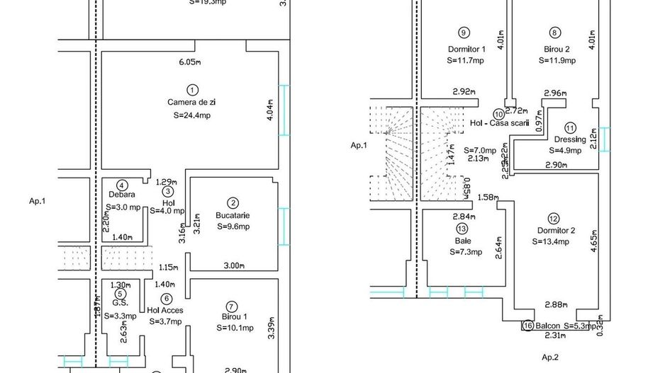
📍 Compartimentare:

Parter: hol, dormitor/birou, baie, bucătărie separată, living, cameră de depozitare

Etaj: hol, dormitor matrimonial cu baie proprie, două dormitoare suplimentare, baie principală, acces spre pod (spațiu de depozitare)

✅ Locuința este ideală pentru o familie care își dorește spațiu, compartimentare eficientă și o locație foarte bună.

Pret:

196.000 Euro semifinisat , cum este in stadiu actual .

216.000 Euro finisat la cheie.

📞 Sunați pentru detalii sau programare

Citește mai mult

  • Număr camere
    5
  • Dormitoare
    4
  • Număr bucătării
    1
  • Număr băi
    3
  • Tip casă
    Duplex
  • Suprafață utilă
    115 mp
  • Suprafață teren
    270 mp
  • Acoperiș
    Țiglă
  • An construcție
    2025
  • Construcție nouă
    Da
  • Număr etaje clădire
    1

Facilități

Apă
Canalizare
CATV
Curent
Gaz
Iluminat stradal
Internet
Mijloace de transport în comun
Străzi asfaltate
Telefon
Alexandru Negrescu - ImoWest Imobiliare
Alexandru Negrescu
Senior Consultant

0757875200


Solicită chiar acum o vizionare
Telefon
Sună acum Solicită vizionare
Necesare:

Site-ul nu poate funcționa corect fără aceste cookie-uri. Vezi cookie-urile

Statistică:

Strângem statistici anonime despre voi, vizitatorii unici, pentru a vă îmbunătăți experiența dumneavoastră. Vezi cookie-urile

Marketing:

Pentru a ne promova mai eficient serviciile noastre, folosim cookies pentru a vă identifica și a vă oferi proprietăți și servicii personalizate. Vezi cookie-urile

Acest site folosește cookies, află detalii. Alege ce tipuri de cookies dorești să permitem: