ID CP2329295

Buziasului-Continental | Case individuale | Carport

ID CP2329295

287,700 €

Casă / Vilă cu 4 camere de vânzare
Buziasului, Timisoara
150 mp
2025

ImoWest Imobiliare va propune spre vânzare 3 case individuale într-un ansamblu rezidențial, situat pe Calea Buziașului, la 5 minute de Continental AEM. Fiecare casă din ansamblu are o curte proprie și un carport acoperit pentru două mașini.

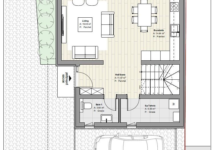
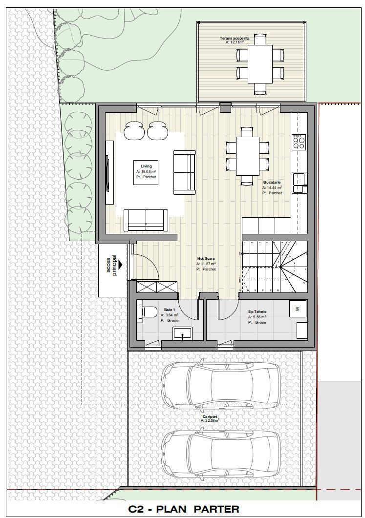
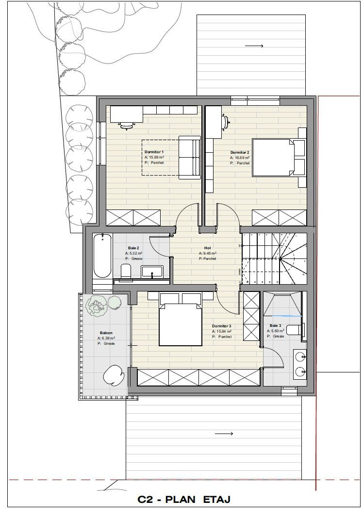
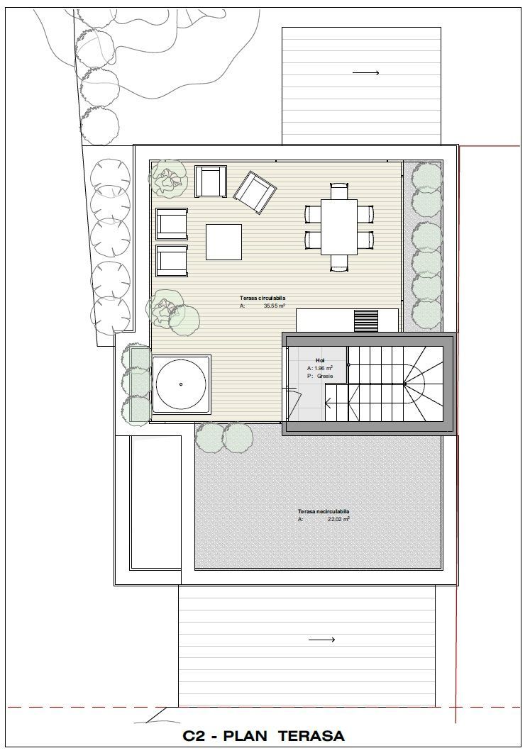
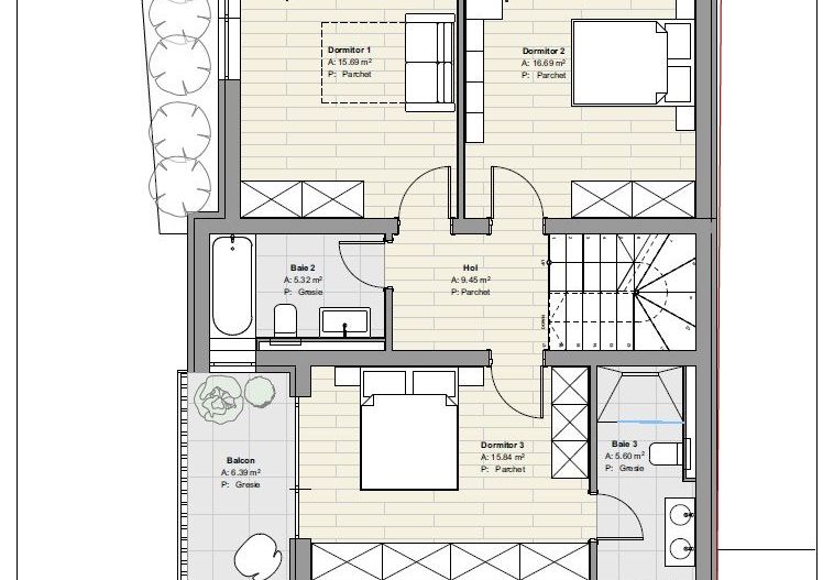
Clădirile sunt în regim de P+E+Terasa circulabilă și sunt concepute astfel:

-la parter dispun de spațiu amplu pentru living, loc de luat masa și bucătarie, un grup sanitar și un spațiu tehnic;

-la etajul 1 se regăsesc trei dormitoare și două băi (una cu acces direct din dormitorul principal și cealaltă cu acces din hol),

-la la etajul 2 accesul către terasa circulabilă.

Curtea individuală este prevăzută cu gazon, arbori maturi și plante ornamentale și beneficiază deasemenea de o terasă acoperită de 12mp.

Clădirile se predau finisate la cheie.

Cladirea 1(pret – 287.700 euro)

Arie construita desfașurată - 186,65mp

+ Terasa circulabilă (etaj 2) - 31,30mp

Arie utilă totală - 149,16mp

Teren aferent (fără drum) - 190,69mp

Carport - 2 locuri de parcare

Cladirea 2(pret – 327.700 euro)

Arie construita desfașurată - 218,20mp

+ Terasa circulabilă (etaj 2) - 35,55mp

Arie utilă totală - 176,60mp

Teren aferent (fără drum) - 346,41mp

Carport - 2 locuri de parcare

Citește mai mult

  • Număr camere
    4
  • Geam la baie
    Da
  • Număr balcoane
    1
  • Număr terase
    1
  • Număr locuri parcare
    2
  • Disponibilitate
    Imediat
  • Tip casă
    Individual
  • Stare interior
    Nou
  • Suprafață utilă
    150 mp
  • Suprafață construită
    186 mp
  • Suprafață teren
    200 mp
  • Acoperiș
    Terasă
  • Stadiu construcție
    În construcție
  • An construcție
    2025
  • Construcție nouă
    Da
  • Tip construcție
    Beton
  • Număr etaje clădire
    1

Facilități

Faianță
Izolație exterioară
Parcare acoperită
Străzi asfaltate
Vopsea lavabilă
Alexandru Negrescu - ImoWest Imobiliare
Alexandru Negrescu
Senior Consultant

0757875200


Solicită chiar acum o vizionare
Telefon
Sună acum Solicită vizionare
Necesare:

Site-ul nu poate funcționa corect fără aceste cookie-uri. Vezi cookie-urile

Statistică:

Strângem statistici anonime despre voi, vizitatorii unici, pentru a vă îmbunătăți experiența dumneavoastră. Vezi cookie-urile

Marketing:

Pentru a ne promova mai eficient serviciile noastre, folosim cookies pentru a vă identifica și a vă oferi proprietăți și servicii personalizate. Vezi cookie-urile

Acest site folosește cookies, află detalii. Alege ce tipuri de cookies dorești să permitem: