ID CP2819903

Central | Spații medicale | Lift targă | Acces persoane cu dizabilități | nZEB

ID CP2819903

5,100 € + 21% TVA

Spațiu comercial de închiriat
Central, Timisoara
300 mp
2025

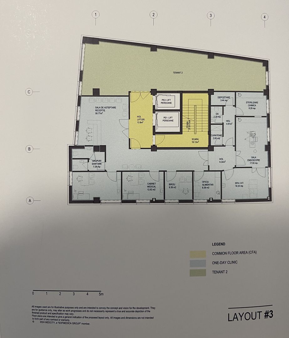
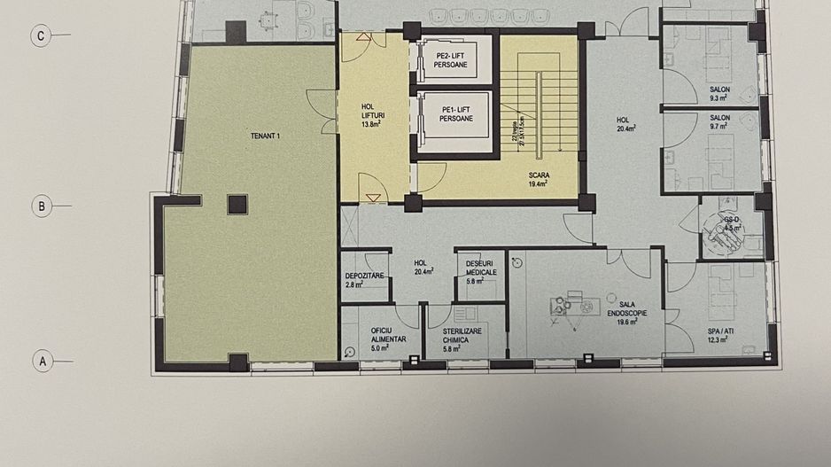
De închiriat spații medicale moderne, situate într-o clădire funcțională din zona Centrală, în imediata apropiere a Parcului Copiilor, cu acces facil la transportul public și numeroase locuri de parcare publice în zonă.

Clădirea este deja activă și găzduiește un operator medical important, fiind concepută să funcționeze ca un hub medical complet, unde pacienții pot găsi într-un singur loc mai multe specialități și servicii medicale – avantaj major pentru fluxul constant de clienți.

Regim de înălțime: S + P + 3E

Suprafață totală: aproximativ 1.100 m²

Spații disponibile:

Aproximativ 600 m² la etajele 2 și 3

Compartimentare flexibilă, potrivită pentru clinici, cabinete, laboratoare sau servicii medicale conexe

Facilități și dotări:

Lift pentru persoane și tărgi

Acces pentru persoanele cu dizabilități

Multiple intrări

Sistem de rezervă pentru apă și energie

Clădire eficientă energetic (standard nZEB)

Infrastructură adaptată cerințelor medicale moderne

Comision 0%.

Pret 17 Euro / mp + TVA

Contactați ImoWest Imobiliare pentru detalii și programare.

ImoWest Imobiliare

Citește mai mult

  • Tip imobil
    Centru comercial
  • Trafic pietonal
    Intens
  • Etaj
    2, 3
  • Număr camere
    1
  • Suprafață utilă
    300 mp
  • Disponibilitate
    Imediat
  • Compartimentare spațiu
    Open space
  • An construcție
    2025
  • Construcție nouă
    Da
  • Număr etaje clădire
    3

Facilități

Apă
Canalizare
Curent
Gaz
Alexandru Negrescu - ImoWest Imobiliare
Alexandru Negrescu
Senior Consultant

0757875200


Solicită chiar acum o vizionare
Telefon
Sună acum Solicită vizionare
Necesare:

Site-ul nu poate funcționa corect fără aceste cookie-uri. Vezi cookie-urile

Statistică:

Strângem statistici anonime despre voi, vizitatorii unici, pentru a vă îmbunătăți experiența dumneavoastră. Vezi cookie-urile

Marketing:

Pentru a ne promova mai eficient serviciile noastre, folosim cookies pentru a vă identifica și a vă oferi proprietăți și servicii personalizate. Vezi cookie-urile

Acest site folosește cookies, află detalii. Alege ce tipuri de cookies dorești să permitem: