ID CP2979309

SAD | Telegrafului | 3 Camere | Ideal pentru Cabinet Medical

ID CP2979309

133,000 €

Spațiu comercial de vânzare
Telegrafului, Timisoara
66 mp
1980

ImoWest Imobiliare va propune spre vanzare, pentru SAD, un Spatiu cu Alta Destinatie situat in zona Simion Barnutiu – Telegrafului, cu destinatia actuala de Cabinet Medicina de Familie.

Spatiul este complet functional in acest moment, fiind dotat si compartimentat conform tuturor normelor in vigoare, ceea ce permite viitorului proprietar fie continuarea imediata a activitatii, fie utilizarea ca investitie cu potential de inchiriere in domeniul medical.

Avand in vedere procedurile tot mai restrictive si limitarea SAD-urilor la nivelul orasului, aceasta proprietate reprezinta o oportunitate rara de a intra sau de a continua activitatea in domeniul medical fara dificultati birocratice majore.

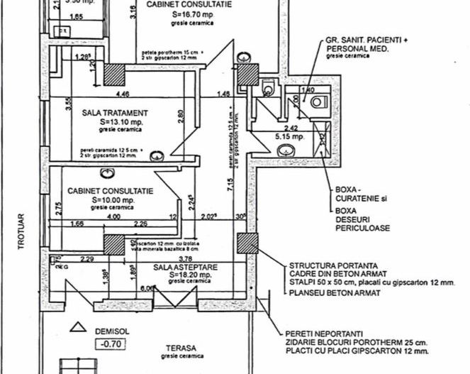
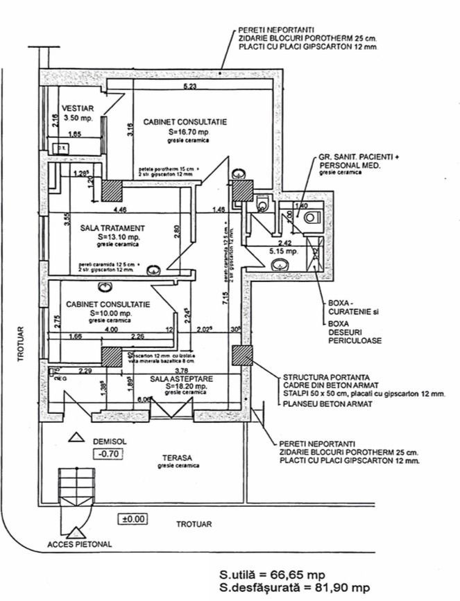
Compartimentare:

-2 cabinete de consultatie

-sala de tratament

-sala de asteptare

-vestiar

-grup sanitar pacienti

-grup sanitar personal medical

-boxa curatenie si deseuri periculoase

-hol

-terasa

Compartimentarea este realizata conform RLV-ului atasat, respectand circuitele functionale specifice activitatii medicale.

Pret: 133.000 Euro

Citește mai mult

  • Tip imobil
    Bloc de apart.
  • Etaj
    Demisol
  • Număr camere
    3
  • Număr băi
    2
  • Număr terase
    1
  • Suprafață utilă
    66 mp
  • Disponibilitate
    Imediat
  • Compartimentare spațiu
    Compartimentat
  • An construcție
    1980
  • Număr etaje clădire
    3

Facilități

Apă
Canalizare
Centrală termică
Curent
Gaz
Corina Bulican - ImoWest Imobiliare
Corina Bulican
Consultant Imobiliar

0764463269


Solicită chiar acum o vizionare
Telefon
Sună acum Solicită vizionare
Necesare:

Site-ul nu poate funcționa corect fără aceste cookie-uri. Vezi cookie-urile

Statistică:

Strângem statistici anonime despre voi, vizitatorii unici, pentru a vă îmbunătăți experiența dumneavoastră. Vezi cookie-urile

Marketing:

Pentru a ne promova mai eficient serviciile noastre, folosim cookies pentru a vă identifica și a vă oferi proprietăți și servicii personalizate. Vezi cookie-urile

Acest site folosește cookies, află detalii. Alege ce tipuri de cookies dorești să permitem: