ID CP2859289

Braytim-Timisoara | 2 camere | Decomandat | Loc de parcare | Comision Zero

Această proprietate nu mai este activă,
te invităm să vizualizezi proprietăți similare

ID CP2859289

400 €

Apartament cu 2 camere de închiriat
Braytim, Timisoara
54 mp
2016

Apartament cu 2 camere, complet decomandat, situat la parterul unui imobil cu regim redus de înălțime, pe o stradă închisă din zona Braytim – ideal pentru liniște și siguranță.

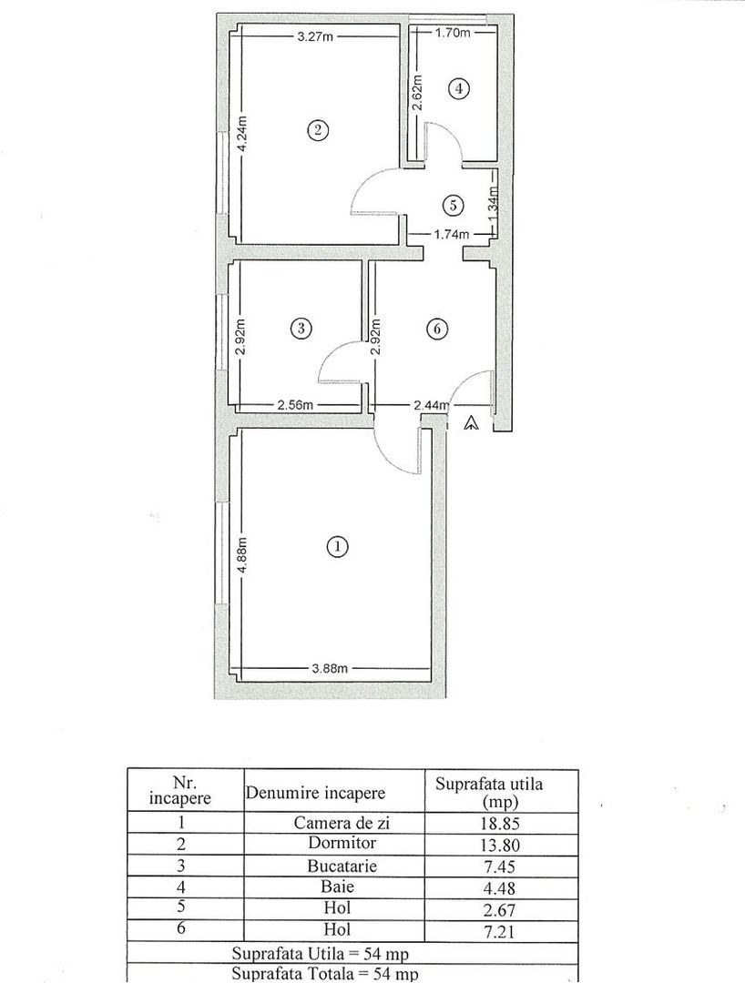
Suprafață utilă: 54,46 mp

Etaj: parter

Regim clădire: P+2E+M

An construcție: 2016

Structură: beton, zidărie cărămidă Porotherm

Compartimentare:

hol, living, dormitor, bucătărie închisă, baie

Dotări și finisaje:

centrală termică proprie, aer condiționat, ușă metalică, uși Porta Doors, parchet și gresie, rulouri exterioare și plase de insecte la toate ferestrele, orientare nord (apartament răcoros vara)

Mobilare și electrocasnice:

bucătărie închisă complet utilată, mașină de spălat rufe, mașină de uscat rufe, mașină de spălat vase, TV smart (diagonală 138 cm), canapea modulară, loc de birou sau masă de dining

Parcare:

loc de parcare propriu, înscris în CF, în curtea privată a imobilului

Avantaje zonă:

stradă cu trafic redus, acces pietonal rapid (aprox. 5 minute) către Lidl, Kaufland, Penny, Profi, Calea Martirilor, mijloace de transport în comun, Parcul Pădurice; grădinițe private și de stat în zonă; Spitalul Județean la aproximativ 10 minute de mers pe jos

Disponibil imediat

Condiții: fără animale de companie

Preț: 400 euro/lună + garanție

ID: CP2859289

Contactați ImoWest Imobiliare pentru detalii și programare vizionare.

Citește mai mult

  • Tip apartament
    Apartament
  • Compartimentare
    Decomandat
  • Număr camere
    2
  • Dormitoare
    1
  • Număr bucătării
    1
  • Număr băi
    1
  • Etaj
    Parter
  • Suprafață utilă
    54 mp
  • Disponibilitate
    imediat
  • Confort
    1
  • Stare interior
    Bună
  • Număr locuri parcare
    1
  • Imobil
    Bloc de apart.
  • An construcție
    2016
  • Tip construcție
    Beton
  • Număr etaje clădire
    3

Facilități

Aer condiționat
Apă
Apometre
Aragaz
Bucătărie mobilată
Calorifere
Centrală proprie
Ferestre PVC
Gresie
Internet
Izolație exterioară
Mobilat parțial
Rulouri / obloane aluminiu
Străzi asfaltate
Ușă intrare metal
Vopsea lavabilă
Necesare:

Site-ul nu poate funcționa corect fără aceste cookie-uri. Vezi cookie-urile

Statistică:

Strângem statistici anonime despre voi, vizitatorii unici, pentru a vă îmbunătăți experiența dumneavoastră. Vezi cookie-urile

Marketing:

Pentru a ne promova mai eficient serviciile noastre, folosim cookies pentru a vă identifica și a vă oferi proprietăți și servicii personalizate. Vezi cookie-urile

Acest site folosește cookies, află detalii. Alege ce tipuri de cookies dorești să permitem: